A dynamic street corner gets a signature look.

 

On the site of the demolished 1960’s Edmonds Post Office building is the now under construction 20 apartment units / 3 retail spaces mixed use building.  2 of these retail spaces set back from Main Street and share a vibrant southerly public terrace, just 2 blocks from the Kingston ferry terminal.

 

 
IMG_2654.JPG

Phase II project under construction, scheduled for completion June 2019

A4.jpg

3-D view from southwest as submitted for design review

A5.jpg

Set back cafe terrace along Main Street

unit D-304 404.jpg

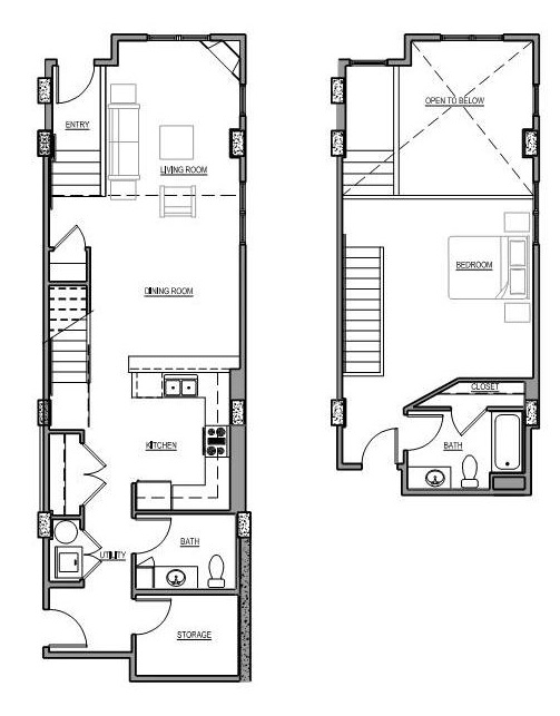
2 Bedroom / 2 Bathroom Unit (Phase 1)

unit A.jpg

2 Bedroom / 2 Bathroom Corner Unit (Phase 2)

unit K-311 411.jpg

1 Bedroom / 1 Bathroom Unit (Phase 1)

unit+S-104+2.jpg

1 Bedroom Live / work unit (Phase 1)