a temporary home for a thriving local business

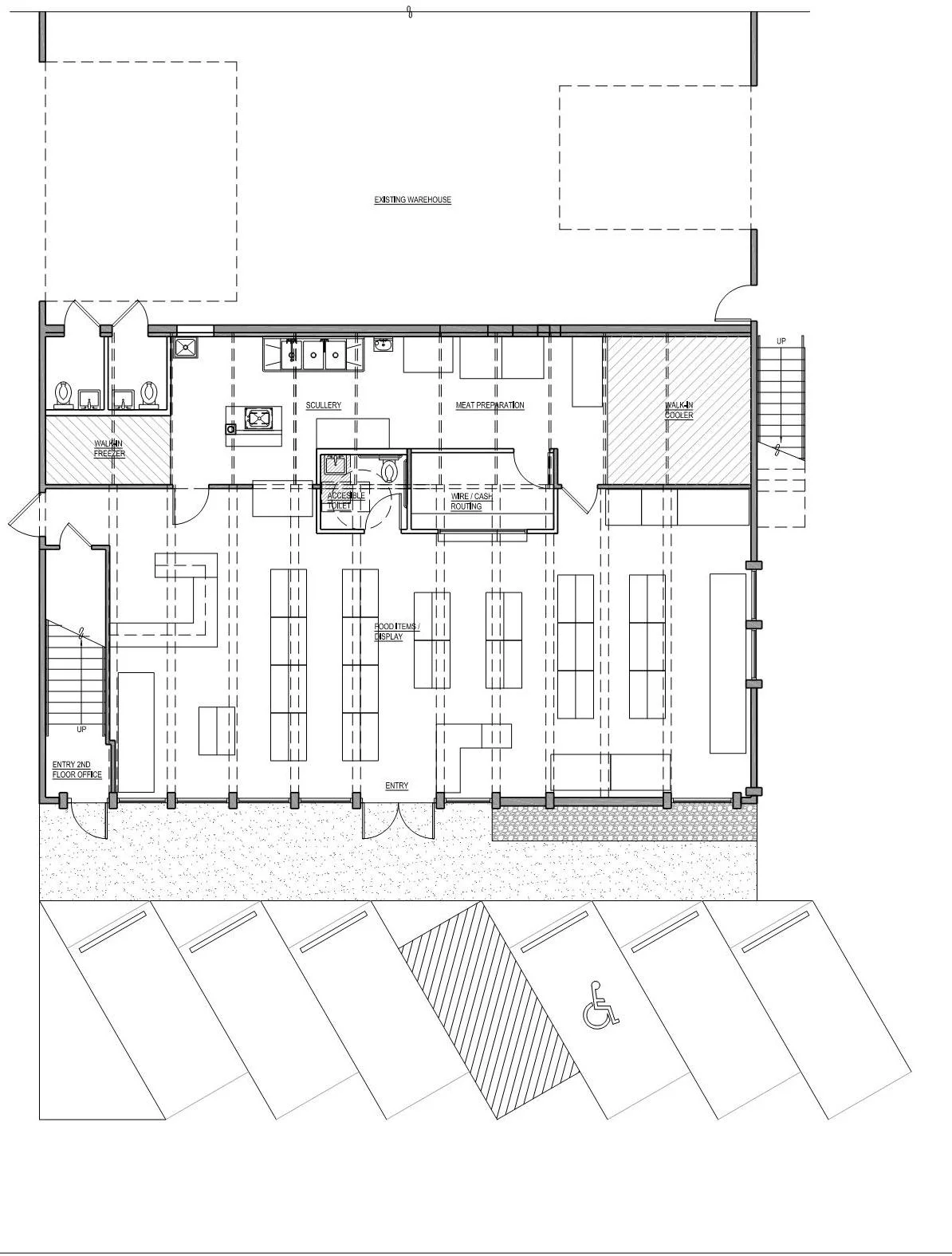
The existing Fresh and Green Grocery Store was displaced by the building of the new Tukwila Justice Center. and in need of a new home. This busy grocery store serves the needs of the local Somali community. Given the limited transportation available to many of its patrons, the relocated store needed to be close to its original location. The ground floor of an existing warehouse building would be a good fit, once all electrical & plumbing upgrades were installed. We worked with the City of Tukwila, adhering to all building & health codes while working fast, given the need for uninterrupted grocery service for the local community.

 
Floor Plan.jpg

a huge volume of goods placed into a poorly built warehouse building

The existing grocery store footprint had little room for shelf space layout and for meat processing.

IMG_2029.JPG

Feature 2

The following is placeholder text known as “lorem ipsum,” which is scrambled Latin used by designers to mimic real copy. Vestibulum ante ipsum primis in faucibus orci luctus et ultrices posuere cubilia Curae. Vivamus sit amet semper lacus, in mollis libero. Aliquam bibendum, turpis eu mattis iaculis, ex lorem mollis sem, ut sollicitudin risus orci quis tellus.

IMG_2452.JPG

The wide open new space was created by existing glulam beams. They were, however, poorly supported at the internal bearing / demising wall.

20190422_131423.jpg
IMG_2023.JPG

Feature 3

The following is placeholder text known as “lorem ipsum,” which is scrambled Latin used by designers to mimic real copy. Vestibulum ante ipsum primis in faucibus orci luctus et ultrices posuere cubilia Curae. In sit amet felis malesuada, feugiat purus eget, varius mi. Suspendisse nec congue purus. Nulla eu pretium massa.

IMG_2448.JPG

We worked with our structural engineer to add posts & footings to properly support these beams.

20190422_131507.jpg