international style architecture….made local

This client and his investors wanted to develop a lot in Mogadishu,Somalia into a mixed use building. He had a vision for a modern building which also would respect traditional ways of living and the availability of local materials and labor. We were challenged having no first hand experience of working in Africa, knowing we would have to do extensive research in order to bridge the gap of our two worlds. Our starting point was in Nairobi, Kenya, as there are many young architects designing inspirational housing projects in that vibrant & growing city.

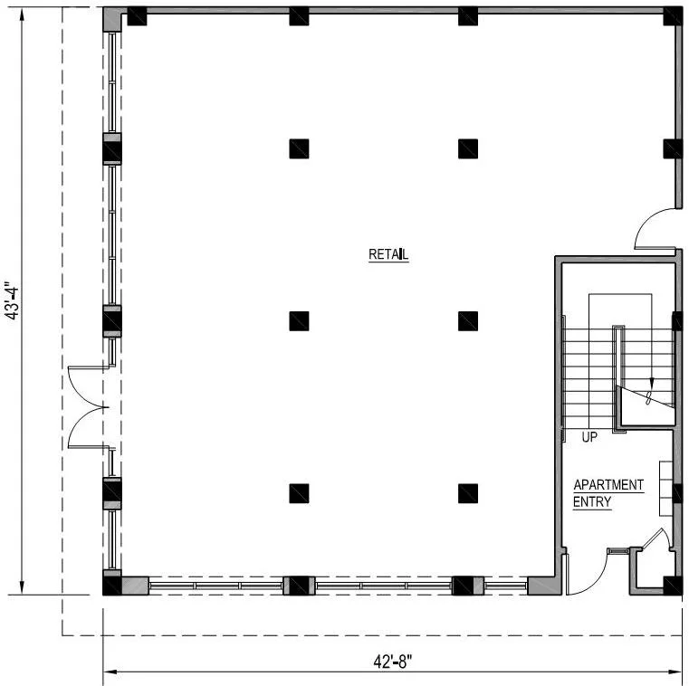
First Floor Plan.jpg

first Floor Plan

The ground floor is an open retail space for future tenant improvement development. The local code allows for a 1-meter overhang over the property line on both public street sides of the building. This allows for a larger second & third floor plan footprint above.

Second Floor Plan.jpg

Second Floor Plan (third floor sim)

The program called for a pair of (3) bedroom apartments per floor on a corner lot Traditional Somali building methods forego mechanical ventilation in kitchens, so the space was placed on the exterior wall. It is also closed off in a separate room, unlike typical open layout american kitchens. The living & dining room become the inner gathering focal point of the house, a protected refuge from the harsh sun & noise of busy life directly outside the building.

Traditional architecture in mogadishu

The photo below depicts a recently completed building in Mogadishu. Some of the applied decorative elements are superfluous, others help in shading windows, for example, from the intense sun and heat. Exterior materials include stucco & tile.

Image 02.jpg

modern architecture in nairobi

A newly completed apartment building in Nairobi, Kenya which utilizes stone, stucco & cantilevered decks with glass guardrails. The stucco is broken up into a two color scheme which offsets to further break up the building mass.

Exterior 1.jpg

View of glass guardrail decks

Exterior 2.jpg

View of (2) color stucco scheme with flush windows. The traditional sun shading above the window heads is not used except for a marrow window articulated in black. Traditional architecture, with the sun shading devices, seems better suited to deal with the intense African sun.

Image 05.jpg

Sketch up study depicting sun shading above windows and glass guardrail decks