A new home for the community post office with housing above

 

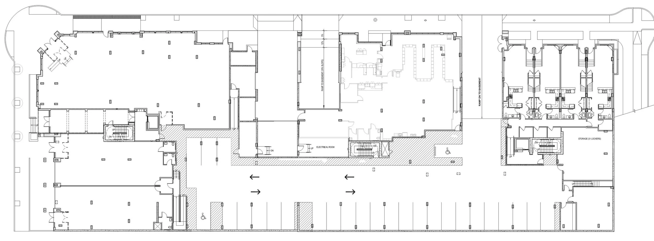
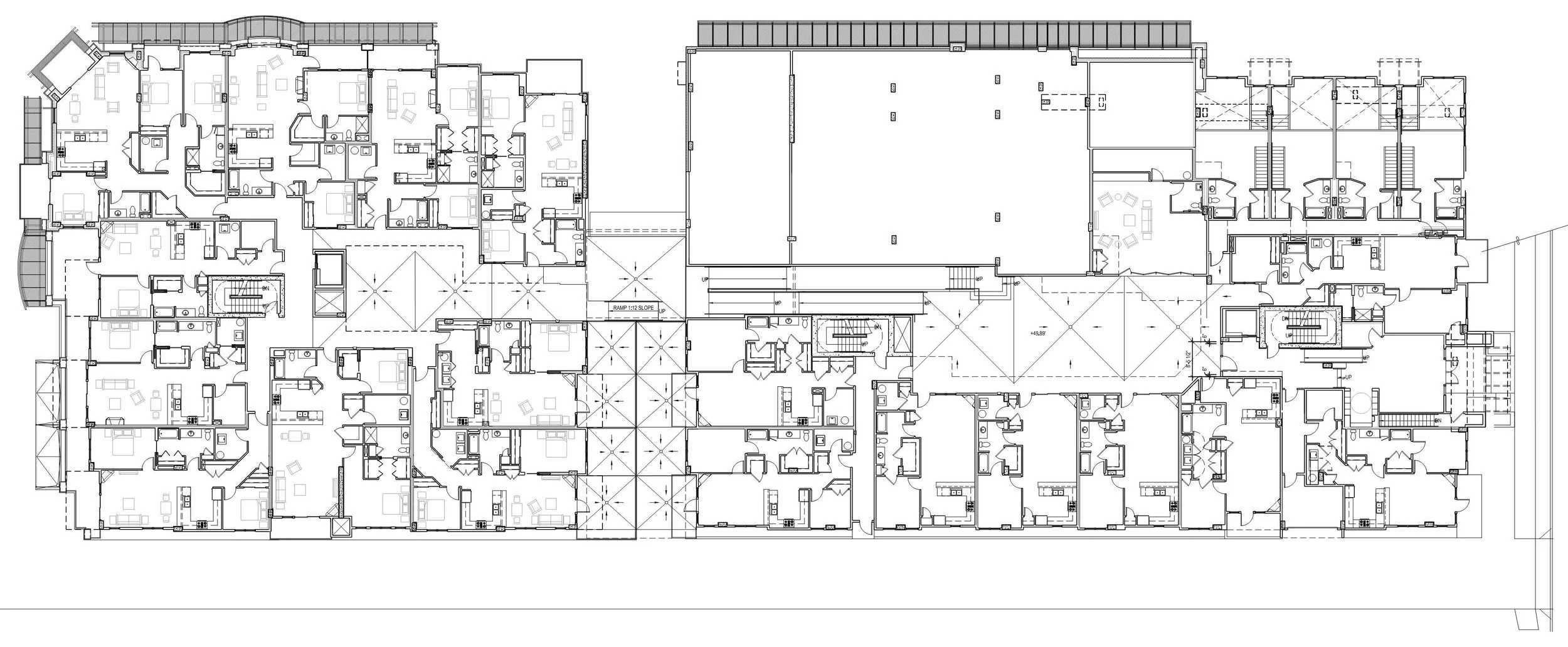
The project makes maximum use of the 30’ Edmonds height limit by “tucking in” to the slope with at grade parking at the rear and 4 (2) story live / work units adjacent to the new downsized 4,400 SF Post Office space along 2nd Avenue.  Above are 38 market rate apartment units wrapping an open air courtyard which includes a community space, fireplace & waterfall. This courtyard will connect to the phase 2 building.

 

 
A9.jpg

Night rendered view from the northwest

A3 cropped.jpg

Third Floor Plan - Phases I and II - Typical Unit Layouts

A0 cropped.jpg

Basement Garage Plan - Phases I and II

A2 cropped.jpg

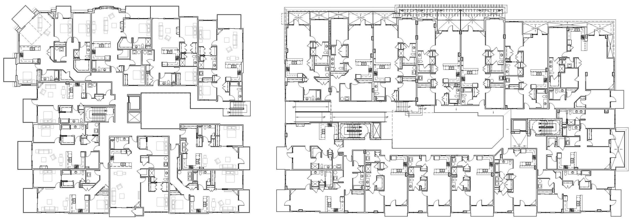
Second Floor Plan - Phases I and II

IMG_2648.JPG

Apartment entry off of Bell Street

20160714_141837.jpg

Courtyard under construction

A1 cropped.jpg

First Floor Plan - Phases I and II

A4.jpg

Fourth Floor Plan - Phases I and II

IMG_2654.JPG

Phase 2 (under construction) will connect via private internal courtyard to phase 1

20160629_230451.jpg

Roof soffit night lighting

IMG_2652.JPG

New Edmonds Post Office Mixed Use Building. The residential entry basement parking entrance is at the lower right with the new post office adjacent to the left. The original 1962 post office building has been torn down and replaced with the phase 2 mixed use building. The US Postal Service has been downsizing their footprints nationally and this post office is substantially smaller than the original. The loading dock for bulk mail is to the right of the basement parking. At the far end (photo left) are the four live / work units which have an open loft style bedroom overlooking the living room below.

Video walk around the exterior of the building describing the history, layout & exterior materials